NACHT VAN GRONINGEN

7 FEBRUARI 2026

Hoofdafbeelding Wester Badstraat 47
Foto 2
Foto
Home Aanbod Wester Badstraat 47

Wester Badstraat 47

9726 CP Groningen

€ 325.000,- k.k.

Altijd leuk een woning te mogen verkopen met een verleden. Laten we dan ook maar eens beginnen met een stukje historie…

De Wester Badstraat maakt onderdeel uit van de Badstratenbuurt, de kleinste georganiseerde woonbuurt van Groningen. De buurt dateert uit het einde van de negentiende eeuw met als één van de eerste gebouwen de gemeentelijk Bad- en zweminrichting uit 1880. In een tijd waarin het hebben van eigen sanitair in de woning geen ‘gemeengoed’ was voorzag ‘het badhuis’ in deze behoefte. Uiteraard gescheiden voor mannen en vrouwen. Aansluitend zijn in de wijk veel schipperswoningen gebouwd, zo ook aan de Wester Badstraat 47.

De Badstratenbuurt zelf wordt gekenmerkt door de sfeervolle straatjes en de ideale ligging ten opzichte van bijvoorbeeld het stadscentrum en het hoofdstation. Daarbij is vanuit de wijk de Ringweg ook goed te bereiken met eigen vervoer. Aan de rand van de wijk is een supermarkt met ruime openingstijden gesitueerd. Een ideale ‘voorraadkast’. Wanneer men de fiets gebruikt – in de stad het beste vervoersmiddel – fietst men in een tijdsbestek van een paar minuten naar zowel het Stadspark, Noorderplantsoen als de zuidzijde van de stad.

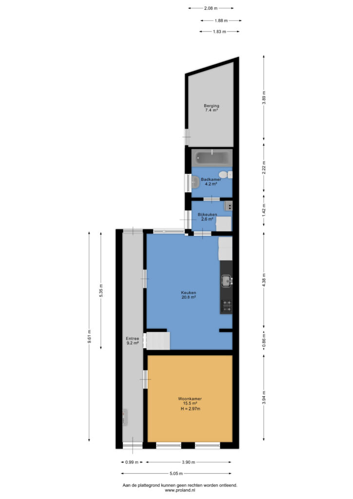
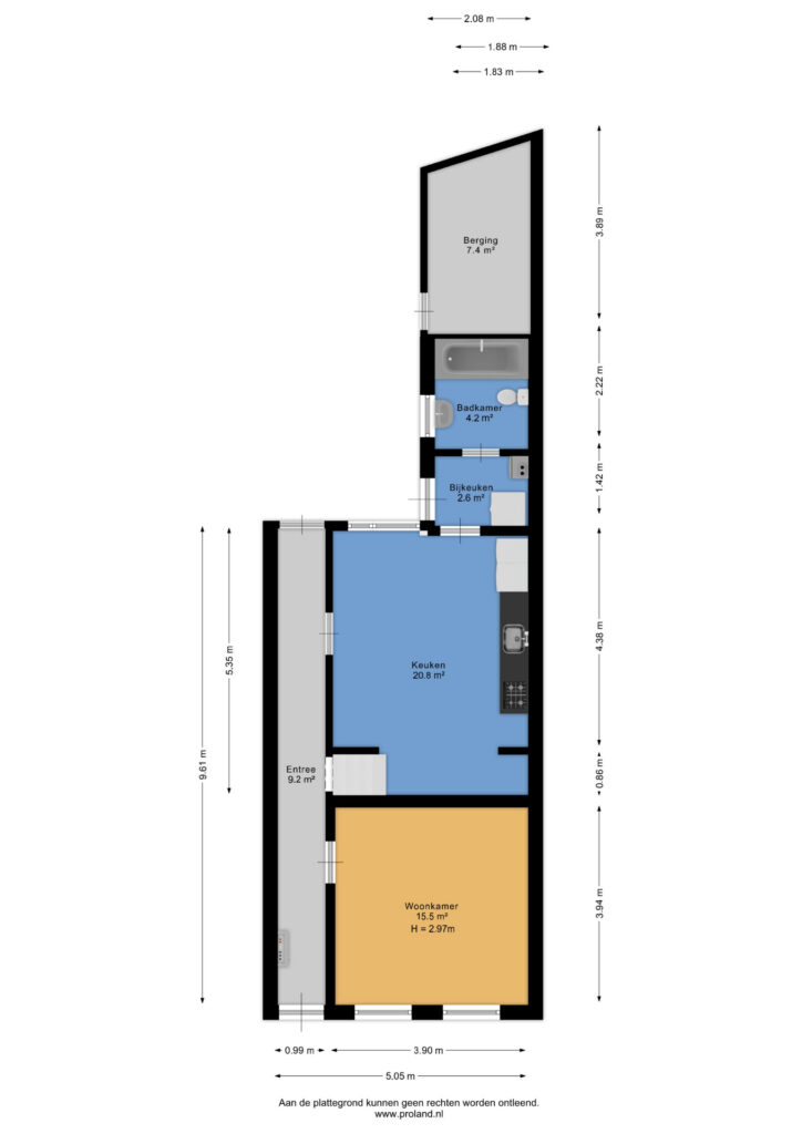
Momenteel wordt de Wester Badstraat 47 rechtmatig bewoond door drie studentes. Het beschikt namelijk intern over drie kamers met een gemeenschappelijke woonkeuken, bijkeuken en badkamer. Met eenvoudige aanpassingen kan het ook voor eigen bewoning geschikt worden gemaakt. Er ontstaat dan een woonkamer aan de straatzijde met de bestaande woonkeuken aan de tuinzijde en badkamer in het achterhuis. Boven beschikt u dan over twee functionele slaapkamers. Resteert een heerlijke stadstuin op het zonnige zuidwesten voorzien van een stenen berging.

Algemeen

  • StatusVerkocht
  • Koopprijs€ 325.000,- k.k.
  • AanvaardingIn overleg

Bouwvorm

  • Soort objectWoonhuis
  • Soort woningEengezinswoning
  • Type woningTwee onder één kapwoning
  • Bouwjaar1884
  • BouwvormBestaande bouw
  • LiggingenAan rustige weg, In woonwijk

Indeling

  • Woonoppervlakte83 m2
  • Perceeloppervlakte93 m2
  • Inhoud355 m3
  • Aantal kamers4
  • Aantal slaapkamers3
  • Aantal badkamers1

Energie

  • EnergieklasseA
  • VerwarmingCV ketel
  • C.V.-KetelIntergas
  • WarmwaterCV ketel
  • IsolatieHR glas
  • CombiketelJa
  • BrandstofGas
  • EigendomEigendom

Buitenruimte

  • TuinAchtertuin
  • HoofdtuinAchtertuin
  • Oppervlakte13 m2
  • Ligging hoofdtuinZuidwest
  • AchteromNee
  • Kwaliteit tuinNormaal

Bergruimte

  • Schuur / BergingAangebouwd steen
  • Totaal aantal1

Parkeergelegenheid

  • Parkeer faciliteitenBetaald parkeren, Parkeervergunningen
  • GarageGeen garage

Dak

  • Soort dakSamengesteld dak
  • Materiaal dakPannen, Bitumineuze Dakbedekking

Overig

  • Permanente bewoningJa
  • Onderhoud binnenRedelijk
  • Onderhoud buitenRedelijk
  • Huidig gebruikWoonruimte
  • Huidige bestemmingWoonruimte

Lagro Ebens

Oude Ebbingestraat 91
9712 HG Groningen
(050) 318 40 80

Vergelijkbare woningen

Hoofdafbeelding Selwerderstraat 1

Selwerderstraat 1

9717 GJ Groningen

€ 280.000,- k.k.

Verkocht
Hoofdafbeelding Robijnstraat 10

Robijnstraat 10

9743 KR Groningen

€ 345.000,- k.k.

Verkocht
Hoofdafbeelding Graspad 53

Graspad 53

9713 NH Groningen

€ 289.000,- k.k.

Verkocht
Hoofdafbeelding Flemingstraat 6

Flemingstraat 6

9728 GZ Groningen

€ 335.000,- k.k.

Lagro Ebens

Vragen?

Wij helpen u graag