NACHT VAN GRONINGEN

7 FEBRUARI 2026

Hoofdafbeelding Zuidlaarderweg 50
Foto
Foto 2
Home Aanbod Zuidlaarderweg 50

Zuidlaarderweg 50

9479 PS Noordlaren

€ 489.000,- k.k.

SFEERVOLLE WONING | GOED ONDERHOUDEN EN GEISOLEERD | GELIEFDE LOCATIE IN NOORDLAREN

Bent u op zoek naar een karaktervolle woning met volop woon-, buiten- en bergruimte en een prachtige ligging? Dan is Zuidlaarderweg 50 in Noordlaren absoluut een kans! Deze charmante woning (bouwjaar ca. 1900) combineert de warme uitstraling van vroeger met hedendaags comfort. Met een woonoppervlakte van 118 m², drie slaapkamers, een verzorgde tuin rondom en een royale kavel van 395 m² is dit een ideale gezinswoning voor wie rustig wil wonen, maar toch nabij stad en natuur.

De woning ligt in Noordlaren, een geliefd dorp op de grens van Groningen en Drenthe. Hier woont u landelijk en rustig, maar met uitstekende voorzieningen binnen handbereik. Op korte afstand bevinden zich winkels, scholen en sportfaciliteiten in Zuidlaren, Glimmen en Haren. Voor natuurliefhebbers zijn het Zuidlaardermeer en de omliggende bossen en natuurgebieden ideaal voor wandelen, fietsen en watersport. Groningen bereikt u met de auto in circa 15 minuten en ook met het openbaar vervoer is de stad goed bereikbaar. Parkeren kan gemakkelijk op eigen terrein.

Indeling

Begane grond
Via de entree komt u in de hal met toegang tot de lichte woonkamer, die dankzij de grote ramen een prettige sfeer heeft. De woonkamer biedt ruimte voor zowel een zit- als een eetgedeelte. De woonkeuken is gesitueerd in de aanbouw (2020) die ruim is opgezet en voorzien van openslaande deuren naar de tuin, waardoor binnen en buiten mooi in elkaar overlopen. Verder vindt u op de begane grond een bijkeuken, toilet en diverse praktische bergruimten.

Eerste verdieping
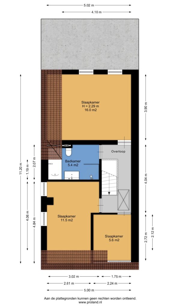
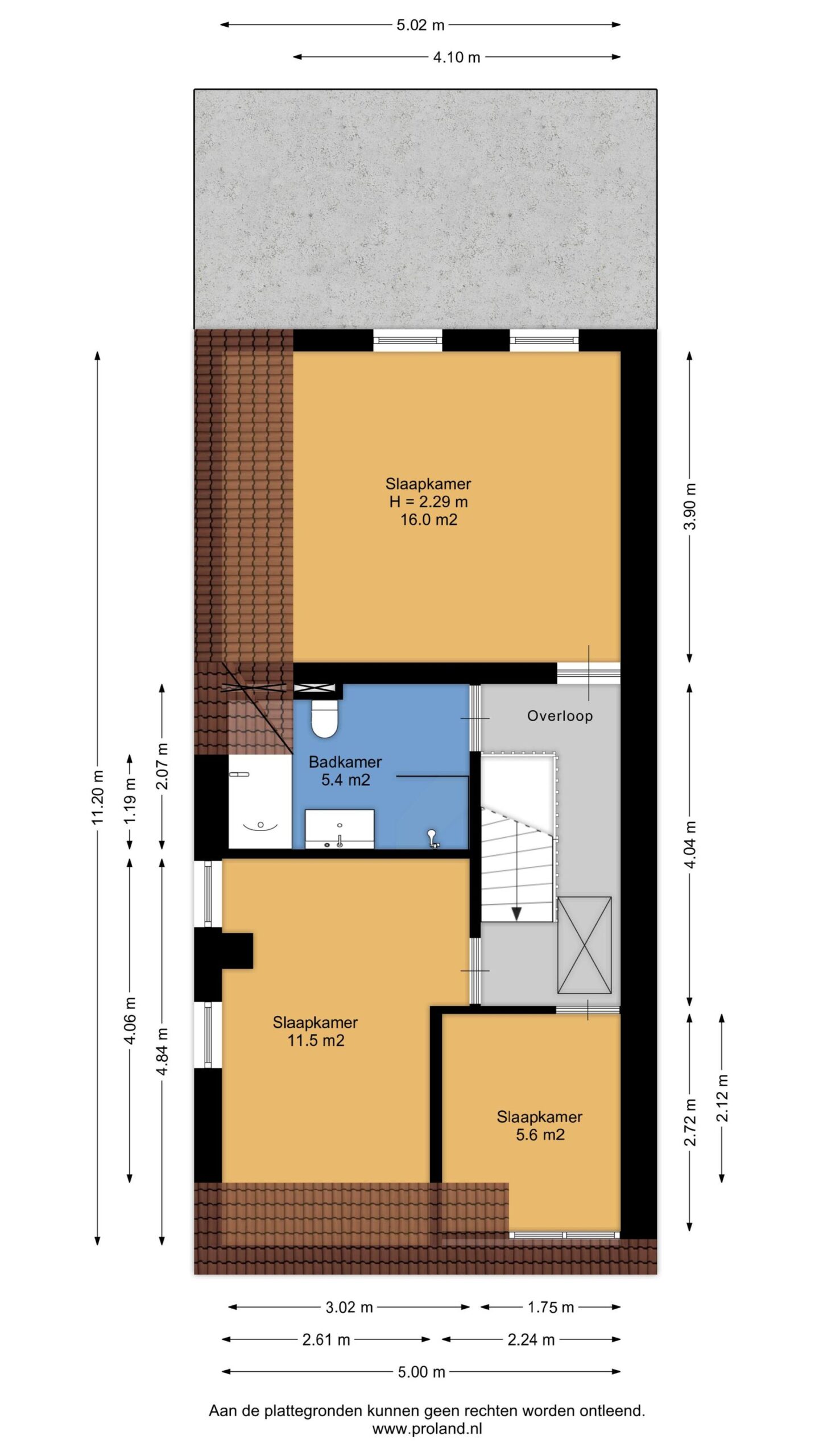
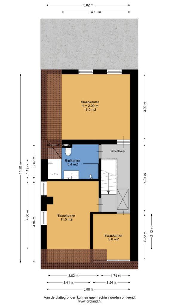
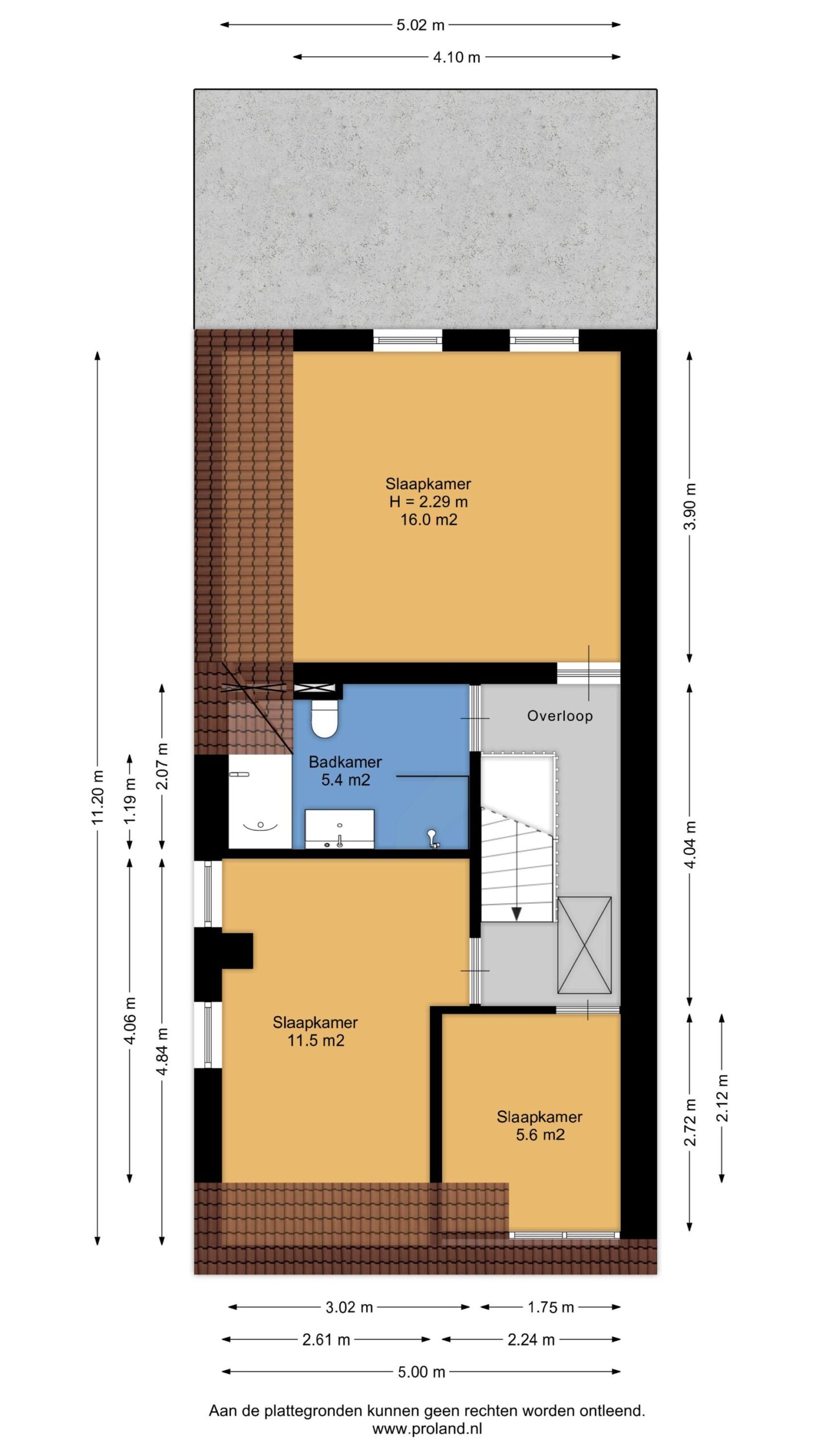
Op de eerste verdieping bevinden zich drie volwaardige slaapkamers en een badkamer. De badkamer is compleet uitgerust met een ligbad, inloopdouche, tweede toilet en wastafelmeubel.

Zolder
De woning beschikt bovendien over een zolderverdieping, bereikbaar via een vlizotrap, die ideaal kan dienen als extra bergruimte.

Buitenruimte
De woning beschikt over een voor-, zij- en achtertuin. De achtertuin biedt veel privacy en is verzorgd aangelegd, met ruimte om te genieten van de zon of juist de schaduw. Achter op het perceel staat een stenen schuur (34 m²) met vliering, perfect voor fietsen, hobby en opslag. De oprit biedt parkeergelegenheid op eigen terrein.

Bijzonderheden
- Recent verbouwd en gemoderniseerd
- 3 slaapkamers
- Badkamer met ligbad, inloopdouche en tweede toilet
- Ruime vrijstaande stenen berging (ca. 34 m²)
- Parkeren op eigen terrein
- Energielabel C

De vraagprijs bedraagt € 489.000,- kosten koper.

Wilt u deze sfeervolle woning zelf ervaren? Neem dan contact met ons op voor een bezichtiging. Wij leiden u graag rond!

Algemeen

  • StatusVerkocht
  • Koopprijs€ 489.000,- k.k.
  • AanvaardingIn overleg

Bouwvorm

  • Soort objectWoonhuis
  • Soort woningEengezinswoning
  • Type woningTwee onder één kapwoning
  • Bouwjaar1900
  • BouwvormBestaande bouw
  • LiggingenIn woonwijk

Indeling

  • Woonoppervlakte118 m2
  • Perceeloppervlakte395 m2
  • Inhoud470 m3
  • Aantal kamers4
  • Aantal slaapkamers3
  • Aantal badkamers1

Energie

  • EnergieklasseC
  • VerwarmingCV ketel
  • C.V.-KetelNefit
  • Bouwjaar C.V.-Ketel2020
  • WarmwaterCV ketel
  • IsolatieDakisolatie, Muurisolatie, Vloerisolatie, Dubbelglas
  • CombiketelJa
  • BrandstofGas
  • EigendomEigendom

Buitenruimte

  • TuinAchtertuin, Voortuin, Zijtuin
  • AchteromNee
  • Kwaliteit tuinVerzorgd

Bergruimte

  • Schuur / BergingVrijstaand steen
  • VoorzieningenVoorzien van elektra, Voorzien van water, Met vliering
  • Totaal aantal1

Parkeergelegenheid

  • Parkeer faciliteitenOp eigen terrein
  • GarageGeen garage

Dak

  • Soort dakSamengesteld dak
  • Materiaal dakPannen

Overig

  • Permanente bewoningJa
  • Onderhoud binnenGoed
  • Onderhoud buitenGoed
  • Huidig gebruikWoonruimte
  • Huidige bestemmingWoonruimte

Lagro Ebens

Oude Ebbingestraat 91
9712 HG Groningen
(050) 318 40 80
Lagro Ebens

Vragen?

Wij helpen u graag