Hoofdafbeelding Eikenlaan 25
Foto 3
Foto
Home Aanbod Eikenlaan 25

Eikenlaan 25

9471 RP Zuidlaren

€ 395.000,- k.k.

Aan de westzijde van het dorp Zuidlaren is in de jaren zestig en zeventig van de vorige eeuw een uitbreidingswijk van het dorp ontstaan. De wijk heeft - heel verrassend - de naam ‘Westlaren’ gekregen en wordt gekenmerkt door het kindvriendelijke karakter, de gunstige bereikbaarheid via de N34 en de nabijgelegen voorzieningen. Daarnaast wordt de wijk Westlaren momenteel volledig vergroend en vernieuwd op het gebied van gas-, water- en elektriciteitsvoorzieningen, wat bijdraagt aan een toekomstbestendige woonomgeving.

De Eikenlaan ligt in een rustige en groene omgeving aan de westzijde van Zuidlaren, op steenworp afstand van het Zuidlaardermeer en prachtige wandel- en fietsroutes door de natuur. In de directe omgeving bevinden zich basisscholen, kinderopvang, een supermarkt, huisarts en diverse sportvoorzieningen. Ook sportpark De Wenakkers en het zwembad liggen in de buurt. Bovendien bent u binnen enkele minuten fietsen in het gezellige dorpscentrum van Zuidlaren, waar u een breed aanbod aan winkels, horeca en voorzieningen vindt – gecombineerd met de gemoedelijke sfeer van een Drents brinkdorp. Zuidlaren heeft daarnaast een gunstige ligging ten opzichte van uitvalswegen richting Groningen en Assen en biedt goede busverbindingen met zowel deze steden als de omliggende dorpen.

Kortom, een heerlijke locatie voor ons om een gezinswoning te koop te mogen aanbieden. In dit geval een gasloze 2-onder-1-kapwoning met energielabel A+++ en onder meer een verrassende indeling op de begane grond. Achter de woning een zonnige tuin op het zuidwesten, toegankelijk via een royale schuifpui vanuit de woonkamer. Schuin achter de woning bevindt zich de garagebox voor de stalling van uw auto, fietsen of andere zaken.

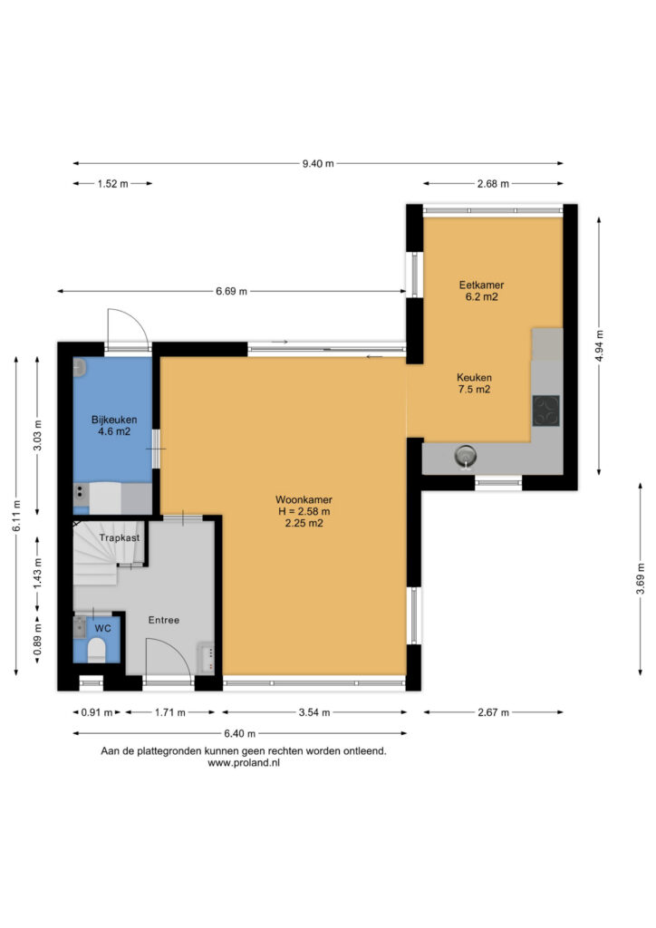
Met name de indeling op de begane grond valt direct op. In 2020 is de gehele benedenverdieping grondig verbouwd waarbij de huidige woonkeuken is gerealiseerd op de plek waar oorspronkelijk een slaapkamer en badkamer waren gesitueerd. De woonkamer zelf beschikt over een keurige PVC vloer en schuifpui naar de achtertuin. Verder uiteraard een entree met modern toilet, trapkast, -opgang naar de eerste verdieping en een functionele bijkeuken. De eerste verdieping onderging in 2019 een vernieuwing en biedt drie keurige slaapkamers met laminaatvloeren. Daarnaast de moderne badkamer met dito ligbad, inloopdouche, wastafelmeubel en wandcloset. Een vlizotrap leidt tot slot naar de bevloerde vliering op de tweede verdieping.

De volgende redenen zouden u kunnen verleiden voor een bezichtiging:
- Moderne gezinswoning in een gewilde, kindvriendelijke woonomgeving
- Speelse tuingerichte indeling met zicht en toegang tot de zonnige achtertuin
- Volledig gasloze woning met hoogwaardig energielabel A+++
- In 2019-2020 grondig verbouwd en instapklaar
- De aanwezigheid van kunststof kozijnen met HR++ beglazing
- De aanwezigheid van vloerverwarming op de begane grond en badkamer
- De aanwezigheid van een all electric warmtepomp en achttien zonnepanelen
- De aanwezigheid van muur-, vloer- en dak- annex plafondisolatie

Algemeen

  • StatusVerkocht
  • Koopprijs€ 395.000,- k.k.
  • AanvaardingIn overleg

Bouwvorm

  • Soort objectWoonhuis
  • Soort woningEengezinswoning
  • Type woningTwee onder één kapwoning
  • Bouwjaar1966
  • BouwvormBestaande bouw

Indeling

  • Woonoppervlakte92 m2
  • Perceeloppervlakte268 m2
  • Inhoud395 m3
  • Aantal kamers4
  • Aantal slaapkamers3
  • Aantal badkamers1

Energie

  • EnergieklasseA+++
  • VerwarmingWarmtepomp
  • WarmwaterElektrische boiler eigendom
  • IsolatieMuurisolatie, Vloerisolatie
  • CombiketelNee

Buitenruimte

  • TuinAchtertuin, Voortuin
  • HoofdtuinAchtertuin
  • Oppervlakte83 m2
  • Ligging hoofdtuinZuidwest
  • AchteromNee
  • Kwaliteit tuinNormaal

Parkeergelegenheid

  • Parkeer faciliteitenOpenbaar parkeren
  • GarageVrijstaand steen
  • Capaciteit1
  • Garages1

Dak

  • Soort dakZadeldak
  • Materiaal dakPannen

Overig

  • Permanente bewoningJa
  • Onderhoud binnenGoed
  • Onderhoud buitenGoed
  • Huidig gebruikWoonruimte
  • Huidige bestemmingWoonruimte

Lagro Ebens

Oude Ebbingestraat 91
9712 HG Groningen
(050) 318 40 80