NACHT VAN GRONINGEN

7 FEBRUARI 2026

Hoofdafbeelding Graspad 53
Foto 2
Foto
Home Aanbod Graspad 53

Graspad 53

9713 NH Groningen

€ 289.000,- k.k.

WONEN IN HET BLAUWE DORP | RUSTIGE LIGGING NABIJ VELE VOORZIENINGEN | BESCHUTTE TUIN MET ACHTEROM

Op zoek naar een knusse karakteristieke woning in een rustige straat, maar toch vlakbij alle voorzieningen van de stad? Dan is deze "randwoning" in "Het Blauwe Dorp" in Groningen absoluut een kans! Deze charmante tussenwoning (bouwjaar 1919) combineert de historische uitstraling met modern wooncomfort. Met twee slaapkamers, een lichte woonkamer en een beschutte tuin met achterom is dit de ideale woning voor starters, stellen of kleine gezinnen die stadse gezelligheid willen combineren met een fijne woonplek.

Het Blauwe dorp is het oudste deel van de Oosterparkwijk in Groningen. Een dorpje, omsloten door een grote stad, op 15 minuten loopafstand van de binnenstad.
Uniek vanwege de rust en zijn karakteristieke huizen. Met als kern de boerderijtjes en daar omheen de randwoningen.

Hier woont u op loopafstand van winkels, supermarkten, horeca en diverse voorzieningen. Scholen, sportfaciliteiten en groenvoorzieningen bevinden zich in de directe omgeving. De bereikbaarheid is uitstekend: met de fiets staat u snel op het station, bushaltes zijn dichtbij en met de auto bereikt u eenvoudig de uitvalswegen richting ringweg en snelwegen. Parkeren kan middels een vergunning of betaald parkeren in de wijk.

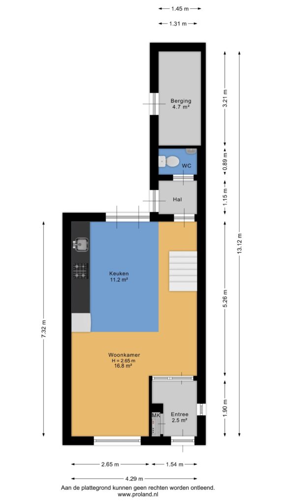
Indeling

Begane grond
U komt binnen via de hal met meterkast en garderobe, een glazen deur geeft toegang tot de lichte woonkamer. Dankzij de grote raampartijen valt er heerlijk veel daglicht binnen en de indeling maakt het geheel praktisch en sfeervol. De unieke stalen retro design keuken biedt voldoende werkruimte en grenst aan de achtertuin. Verder vindt u op de begane grond een apart toilet en een aangebouwde berging, die bereikbaar is via de tuin.

Eerste verdieping
De eerste verdieping beschikt over twee slaapkamers van goed formaat, ideaal als hoofdslaapkamer en een tweede kamer met slaapvide die ook prima als logeer- en/of werkkamer kan worden gebruikt. De badkamer is compact maar functioneel en voorzien van een wastafel en douche. Daarnaast is er een praktische aansluiting voor wasmachine en droger aanwezig.

Buitenruimte
De woning beschikt over een achtertuin van ca. 41 m², gelegen op het zuidoosten. De tuin is via een achterom bereikbaar en biedt toegang tot de praktische berging. Dankzij de beschutte ligging en het ontbreken van inkijk geniet u hier van veel privacy.

Bijzonderheden
- Monumentaal pand (bouwjaar 1919), gelegen in beschermd stadsgezicht
- Energielabel C, geldig tot 2027
- Voorzien van dak- en muurisolatie en HR++ glas
- Verwarming en warm water via Remeha cv-ketel (2019, eigendom)
- Parkeervergunningen in de wijk en/of betaald parkeren
- Beschutte achtertuin van ca. 40 m² met achterom
- Erfpacht is afgekocht.

De vraagprijs voor deze woning is € 289.000,- kosten koper.

Bent u enthousiast geworden over deze charmante woning in Groningen? Neem dan snel contact met ons op voor het maken van een bezichtigingsafspraak via 050 318 40 80. Wij leiden u graag rond!

De vermelde informatie is van algemene aard en is niet meer dan een uitnodiging om in onderhandeling te treden. Aan de inhoud van deze informatie kunnen geen rechten worden ontleend.

Algemeen

  • StatusVerkocht
  • Koopprijs€ 289.000,- k.k.
  • AanvaardingIn overleg

Bouwvorm

  • Soort objectWoonhuis
  • Soort woningEengezinswoning
  • Type woningTussenwoning
  • Bouwjaar1919
  • BouwvormBestaande bouw
  • LiggingenAan rustige weg, In woonwijk

Indeling

  • Woonoppervlakte66 m2
  • Perceeloppervlakte91 m2
  • Inhoud262 m3
  • Aantal kamers3
  • Aantal slaapkamers2
  • Aantal badkamers1

Energie

  • EnergieklasseC
  • VerwarmingCV ketel
  • C.V.-KetelRemeha
  • Bouwjaar C.V.-Ketel2019
  • WarmwaterCV ketel
  • IsolatieDakisolatie, Muurisolatie
  • CombiketelNee
  • BrandstofGas
  • EigendomEigendom

Buitenruimte

  • TuinAchtertuin
  • HoofdtuinAchtertuin
  • Oppervlakte41 m2
  • Ligging hoofdtuinZuidoost
  • AchteromNee
  • Kwaliteit tuinNormaal

Parkeergelegenheid

  • Parkeer faciliteitenBetaald parkeren, Parkeervergunningen
  • GarageGeen garage

Dak

  • Soort dakSamengesteld dak
  • Materiaal dakPannen

Overig

  • Permanente bewoningJa
  • Onderhoud binnenGoed
  • Onderhoud buitenGoed
  • Huidig gebruikWoonruimte
  • Huidige bestemmingWoonruimte

Lagro Ebens

Oude Ebbingestraat 91
9712 HG Groningen
(050) 318 40 80

Vergelijkbare woningen

Onder bod
Hoofdafbeelding Selwerderstraat 1

Selwerderstraat 1

9717 GJ Groningen

€ 280.000,- k.k.

Verkocht
Hoofdafbeelding Robijnstraat 10

Robijnstraat 10

9743 KR Groningen

€ 345.000,- k.k.

Verkocht
Hoofdafbeelding Flemingstraat 6

Flemingstraat 6

9728 GZ Groningen

€ 335.000,- k.k.

Verkocht
Hoofdafbeelding Ubbo Emmiussingel 47f

Ubbo Emmiussingel 47f

9711 BD Groningen

€ 325.000,- k.k.

Lagro Ebens

Vragen?

Wij helpen u graag