NACHT VAN GRONINGEN

7 FEBRUARI 2026

Hoofdafbeelding Hereweg 94a
Foto 74
Foto
Home Aanbod Hereweg 94a

Hereweg 94a

9725 AH Groningen

€ 525.000,- k.k.

WONEN l WERKEN l TOP LOCATIE l PAND MET HEEL VEEL MOGELIJKHEDEN

Op zoek naar een woon/werk- of beleggingspand of combinatie daarvan? Dan is hier uw kans. Fraai object met de kenmerkende bouwkundige aspecten uit begin 1900.

Hereweg 94-94a te Groningen geheel pand.

Nr 94, De kantoorruimte is op de begane grond met kelder en zoldertje, de oppervlakte is circa 84 m².

Nr 94a, de bovenwoning op de eerste en tweede verdieping met dakterras meet totaal circa 95 m² (excl. dakterras).

Het betreft hier een object dat geschikt is voor een scala aan verschillende soorten gebruik, een aantal voorbeelden:
1. Voor de belegger die het gehele object wil verhuren.
2. Voor de ondernemer die de kantoorruimte gebruikt voor zijn onderneming en verhuur van de bovenwoning.
3. Voor de ondernemer die het gehele pand zelf wil gebruiken als woon/werk pand.
4. Voor de particulier die het gehele pand wil bewonen.
5. Voor de particulier die het pand deels zelf wil bewonen en deels wil verhuren als kantoor/praktijk/wonen.
6. Voor gebruik als meerdere generaties woning.
(Deze eventuele mogelijkheden zijn natuurlijk indien nodig wel afhankelijk van toestemming van de daartoe bevoegde instanties.)

Sterke punten:
• Volumineus (heel) pand;
• Combinatie wonen/werken;
• Voorname ligging vlakbij het centrum, NS hoofdstation en uitvalswegen;
• Geschikt als belegging eigen woning met kantoor/praktijk of combinaties daarvan;
• In loop der jaren verbouwd en verbeterd;
• Buiten schilderwerk en binnen schilderwerk (deels) recent gedaan.

Indeling nummer 94:
Entree met toegang tot de kantoorruimte op de begane grond met aparte vergaderruimte, kantine, toilet, kelder en opslag zoldertje.

Indeling nummer 94a:
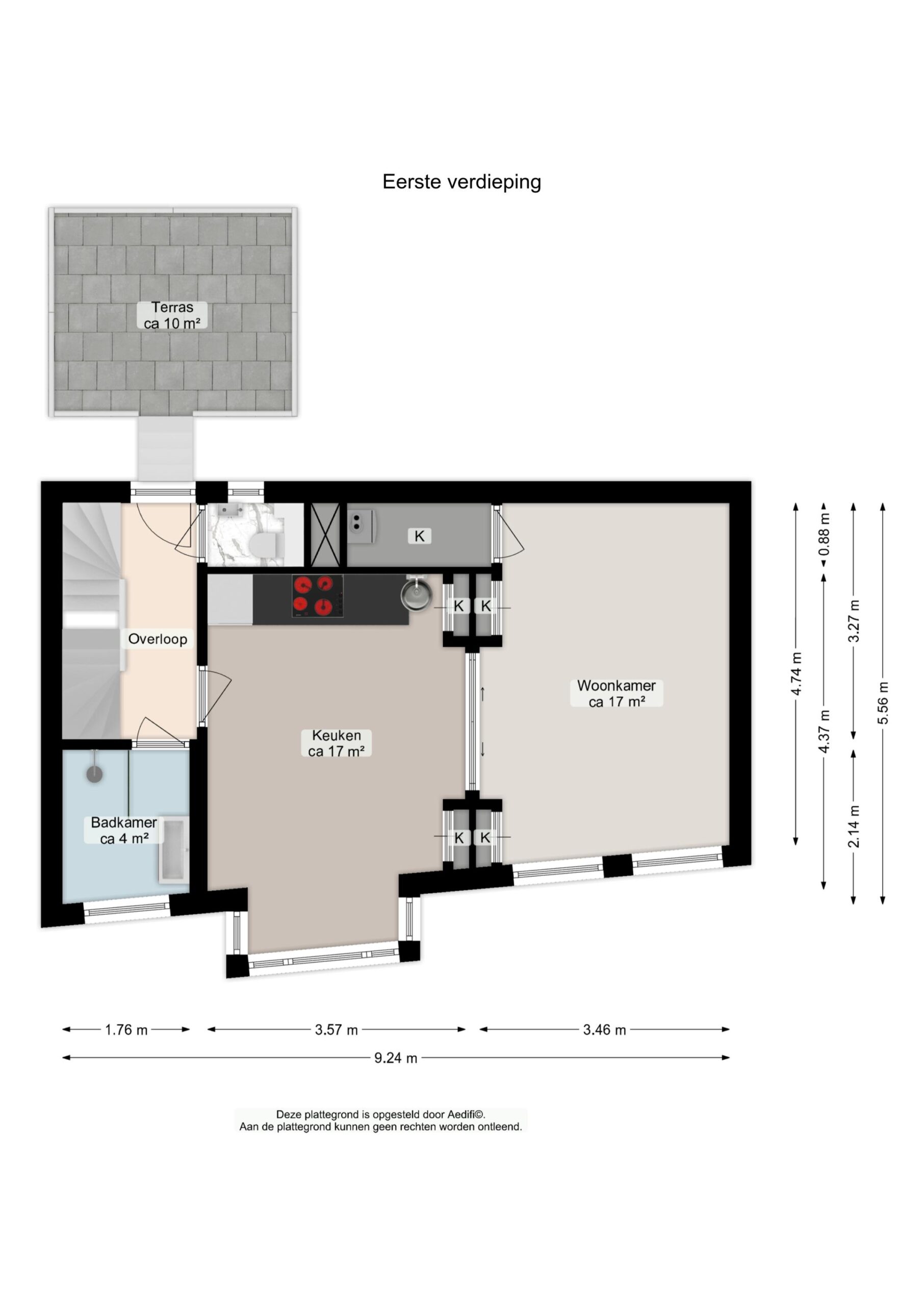
Via de entree op de begane grond is er de opgang naar de bovenwoning op de eerste en tweede verdieping. Op de eerste verdieping is er een overloop die toegang biedt aan een woonkamer met open keuken, badkamer, toilet en dakterras aan de achterzijde.
Op de tweede verdieping een overloop en drie slaapkamers en balkon aan de voorzijde.

Voorzieningen:
Zowel de kantoorruimte als de bovenwoning zijn voorzien van zeer modern en doelmatig sanitair en keukens.

Locatie en bereikbaarheid:
Het object bevindt zich aan de belangrijkste toegangsweg naar het centrum en daardoor een fraaie zicht locatie. Door de zeer centrale ligging zijn ook de uitvalswegen zeer snel te bereiken. Ideaal voor wonen en werken.

Vraagprijs: € 525.000,- kosten koper.
Aanvaarding in overleg.
Het gehele pand kan vrij van huur worden opgeleverd.

De verkoop zal op basis van "As is where is" zijn en in de koopovereenkomst zullen dan ook dienaangaande artikelen worden opgenomen evenals een niet zelfbewoningsclausule.

Deze verkoop is in collegiale samenwerking met Tijssen & Vos - Makelaardij Advies Taxaties

Heeft u interesse? Bel of mail ons voor een bezichtiging.

De vermelde informatie is van algemene aard en is niet meer dan een uitnodiging om in onderhandeling te treden. Aan de inhoud van deze informatie kunnen geen rechten worden ontleend.

Algemeen

  • StatusVerkocht
  • Koopprijs€ 525.000,- k.k.
  • AanvaardingIn overleg

Bouwvorm

  • Soort objectWoonhuis
  • Soort woningHerenhuis
  • Type woningHalfvrijstaande woning
  • Bouwjaar1904
  • BouwvormBestaande bouw

Indeling

  • Woonoppervlakte159 m2
  • Perceeloppervlakte113 m2
  • Inhoud420 m3
  • Aantal kamers6
  • Aantal slaapkamers3
  • Aantal badkamers1

Energie

  • EnergieklasseF
  • VerwarmingCV ketel
  • C.V.-KetelVaillant
  • Bouwjaar C.V.-Ketel2024
  • WarmwaterElektrische boiler eigendom
  • IsolatieDakisolatie, Vloerisolatie, Dubbelglas
  • CombiketelNee
  • BrandstofGas
  • EigendomEigendom

Buitenruimte

  • TuinGeen tuin
  • AchteromNee

Parkeergelegenheid

  • Parkeer faciliteitenBetaald parkeren, Parkeervergunningen
  • GarageGeen garage

Dak

  • Soort dakSamengesteld dak
  • Materiaal dakBitumineuze Dakbedekking

Overig

  • Permanente bewoningJa
  • Onderhoud binnenGoed
  • Onderhoud buitenGoed
  • Huidig gebruikWoonruimte
  • Huidige bestemmingWoonruimte

Lagro Ebens

Oude Ebbingestraat 91
9712 HG Groningen
(050) 318 40 80

Vergelijkbare woningen

Verkocht
Hoofdafbeelding Boumaboulevard 373

Boumaboulevard 373

9723 ZS Groningen

€ 495.000,- k.k.

Verkocht
Hoofdafbeelding Boterdiep 32-21

Boterdiep 32-21

9712 LP Groningen

€ 435.000,- k.k.

Verkocht
Hoofdafbeelding Nassaulaan 54

Nassaulaan 54

9717 CL Groningen

€ 595.000,- k.k.

Verkocht
Hoofdafbeelding Langestraat 242

Langestraat 242

9712 MJ Groningen

€ 495.000,- k.k.

Lagro Ebens

Vragen?

Wij helpen u graag