NACHT VAN GRONINGEN

7 FEBRUARI 2026

Hoofdafbeelding Redoute 14
Foto
Foto 2
Home Aanbod Redoute 14

Redoute 14

9723 ZJ Groningen

€ 749.500,- k.k.

De Linie, een knusse, jonge woonwijk aan de zuidzijde van onze stad Groningen. Gelegen net ‘onder’ de Oosterpoort, waardoor de binnenstad gewoon binnen ‘handbereik’ is. De buurt grenst in een andere windrichting aan het Europapark waardoor de Euroborg met aanverwante voorzieningen, scholen, kinderdagverblijven maar ook het gelijknamige treinstation op veilige loopafstand zijn gesitueerd. Ondanks de centrale ligging en aanwezigheid van diverse voorzieningen in de directe nabijheid wordt De Linie gekenmerkt door de rust in de wijk. Onder meer het gevolg van het autoluwe karakter ervan. Ideaal voor jonge gezinnen die kindvriendelijk, nieuw en toch ook binnenstedelijk willen wonen dus!

Aan de rand van deze gewilde buurt mag Lagro Ebens een heerlijke maar bovenal bijzondere gezinswoning te koop aanbieden! In de eerste plaats vanwege de ligging. Aan de rand van de buurt met een vrij uitzicht richting openbaar groen en daarachter de ‘loop’ van het Oude Winschoterdiep. Dan de architectuur. Modern en kubistisch te noemen met als echte ‘eye-catcher’ de in 2019 uitgebouwde keuken. Compleet uitgevoerd in glas waardoor ‘binnen en buiten’ fantastisch in elkaar overlopen. Meer functioneel? Bijvoorbeeld de parkeermogelijkheid op eigen terrein onder de ruime carport. Maar ook de mate van duurzaamheid, behorend bij een woning uit 2006 met twaalf in 2023 geplaatste zonnepanelen.

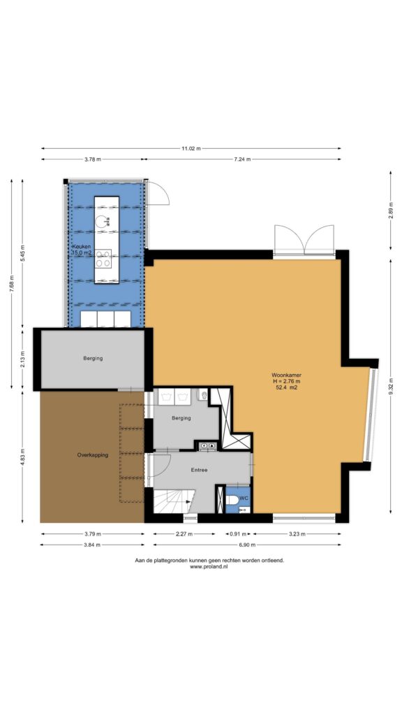
De indeling is zowel speels als functioneel te noemen. Neem de woonkamer. Een heerlijk formaat voorzien van meerdere indelingsmogelijkheden, fraai uitzicht, Eiken vloer en tuindeuren. De woonkamer sluit aan op de spectaculair uitgebouwde keuken met een uiterst moderne inrichting en harmonicadeur naar de tuin met gazon en terras. Op de begane grond completeren de bijkeuken, fietsenberging en de entree met modern toilet het geheel. De slaapkamers bevinden zich op de verdieping. Drie in totaal en allen van een bruikbare maatvoering waarbij één beschikt over een kastenwand. Tot slot de badkamer. Eveneens op de eerste verdieping, modern uitgevoerd en voorzien van een inloopdouche, tweede wandcloset en wastafel.

Ben je net zo enthousiast over Redoute 14 als wij?

Mail of bel ons voor het maken van een afspraak!

Algemeen

  • StatusVerkocht
  • Koopprijs€ 749.500,- k.k.
  • AanvaardingIn overleg

Bouwvorm

  • Soort objectWoonhuis
  • Soort woningEengezinswoning
  • Type woningVrijstaande woning
  • Bouwjaar2006
  • BouwvormBestaande bouw
  • LiggingenIn woonwijk, Beschutte ligging

Indeling

  • Woonoppervlakte149 m2
  • Perceeloppervlakte187 m2
  • Inhoud582 m3
  • Aantal kamers4
  • Aantal slaapkamers3
  • Aantal badkamers1

Energie

  • EnergieklasseA
  • VerwarmingVloerverwarming gedeeltelijk, Warmte terugwininstallatie
  • WarmwaterCV ketel
  • IsolatieDakisolatie, Muurisolatie, Vloerisolatie, HR glas
  • CombiketelNee

Buitenruimte

  • TuinAchtertuin
  • HoofdtuinAchtertuin
  • Oppervlakte45 m2
  • Ligging hoofdtuinNoordwest
  • AchteromNee
  • Kwaliteit tuinVerzorgd

Parkeergelegenheid

  • Parkeer faciliteitenBetaald parkeren, Parkeervergunningen
  • GarageCarport, Geen garage

Dak

  • Soort dakPlat dak

Overig

  • Permanente bewoningJa
  • Onderhoud binnenGoed
  • Onderhoud buitenGoed
  • Huidig gebruikWoonruimte
  • Huidige bestemmingWoonruimte

Lagro Ebens

Oude Ebbingestraat 91
9712 HG Groningen
(050) 318 40 80

Vergelijkbare woningen

Verkocht
Hoofdafbeelding Boumaboulevard 373

Boumaboulevard 373

9723 ZS Groningen

€ 495.000,- k.k.

Verkocht
Hoofdafbeelding Tonny van Leeuwenlaan 17

Tonny van Leeuwenlaan 17

9731 KH Groningen

€ 649.000,- k.k.

Verkocht
Hoofdafbeelding Hereweg 94a

Hereweg 94a

9725 AH Groningen

€ 525.000,- k.k.

Verkocht
Hoofdafbeelding Boterdiep 32-21

Boterdiep 32-21

9712 LP Groningen

€ 435.000,- k.k.